Lisboa, Lisboa, Estrela, Lapa (Lapa)
                            
                            
                         
                        
                        
                        
                        
                            
                            9-room triplex apartment in the Buenos Aires Palace condominium in Lapa.
Located in the prestigious area of Lapa, in the Estrela district of Lisbon's historic center, this magnificent triplex apartment offers luxury and comfort in an exclusive and private setting.
The Buenos Aires Palace Condominium is a unique element in the city of Lisbon.
This palace, built by the Viscounts of Olivais in 1860, is a good example of how people lived in the aristocratic Lisbon of the 19th century. In 1916 it was the headquarters of the former Industrial Institute and later functioned as a cultural space, namely as a university.
The Palace has now recovered all its grandeur in a unique project, preserving its sobriety and elegance in the architecture of the central towers, combined with modern contemporary architecture.
The Buenos Aires Palace has a communal garden of around 1,200m², an outdoor swimming pool, gym, various green areas and private parking.
With six suites, three living rooms and a spacious gym, this property has been designed to meet the demanding needs of those looking for a sophisticated and well-equipped residence.
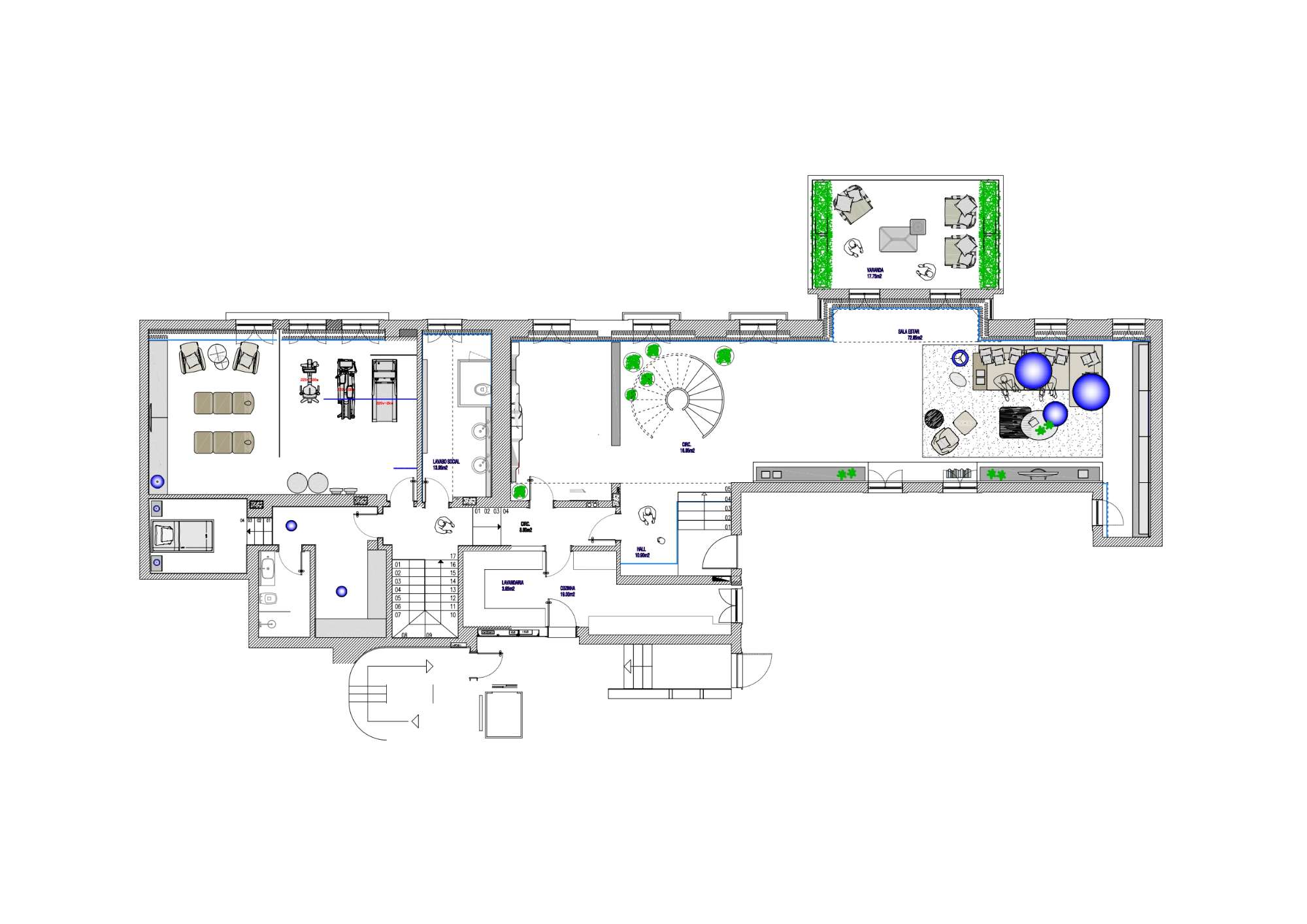
On the first floor, the large living and dining room provide an elegant and welcoming space. The huge terrace overlooking the pool and garden is very sunny and excellent for entertaining and socializing. The fully equipped, modern kitchen is an invitation for culinary enthusiasts to explore their talents. Floor-to-ceiling windows and a generous terrace flood the room with natural light, offering breathtaking views of the surrounding cityscape. We can also count on a suite and laundry room, a social bathroom and a gym that allows for great functionality and description.
On floor -1, there is a bright suite with a balcony and a living room with great character. This floor also has an independent access to the whole house for greater description.
On the 1st floor, there is access via a staircase that is a symbol of good taste and sophistication, which leads up to a living room for the distribution of the two access wings to the suites.
To the left are two suites very well lit by several windows with stunning views of the condominium's garden and swimming pool.
The right wing gives access to the entrance hall of the suite and Master Suite, as well as independent access to the exterior of the apartment for more description.
The suite is very elegant and bright and the Master Suite is large with a dressing room, fireplace and many details that we'll let you discover during your visit. With a wonderful private terrace to watch a warm sunset, this suite will undoubtedly make you sigh.
These spaces are luxuriously decorated and designed to offer the perfect environment for relaxation and renewal after a long day - a haven of tranquillity and refinement.
This apartment features
- All the furniture shown;
- Integrated security system;
- Home automation system (Smart House);
- Air conditioning with distribution grilles in the walls and ceilings;
- Flood and intrusion detection;
- Bose surround sound system;
In addition to the storage room, this fraction also contains a garage box full of refinement and good taste.
In addition to the impeccable interior, residents of this private condominium have access to a range of first-class amenities. The well-equipped gym offers the opportunity to maintain an active and healthy lifestyle, while the swimming pool invites relaxation and leisure on sunny days.
With 24-hour security and private parking, this triplex apartment in Lapa, Estrela, offers a perfect combination of luxury, comfort and convenience in one of Lisbon's most exclusive neighborhoods. Don't miss the opportunity to make this exceptional place your new home.